


ADR - PR Offices

Cobian's Plaza LM - 03 - 08
Ave. Ponce de León 1607
San Juan - PR 00912
2019
​
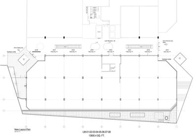
ADR-PR Headquarters
Agile Document Review (ADR) is a law firm that offers its services remotely. However, all their employees report to the same space. Consequently, they have established their headquarters in various spaces located in the Cobian's Plaza in Santurce.
Our intervention comprehends the interiors and involves the merging of these spaces to accommodate more than 100 employees. The client has required us that in addition to providing space, the firm must have private phone booths, conference and meeting rooms, a lounge, and private offices for the partners. Considering that the space is located in a basement, we work with the implementation of bright colors along with white. By darkening the ceiling, we create the sensation that we inhabit different spaces that are distributed in what can be understood as the main "street". Likewise, bright colors are used to identify different areas and activities.













